20161224 16時頃到着
基板寸法「100!!」x150mm
構想としては
1.ケーシング
我が家は筐体はタカチHENシリーズで統一しているが、内部溝にピタリとはまる!!
・HEN110420B 背の高い電解コンデンサ(KZかSILMICⅡ予定)は横倒しの要あり
(50Vの場合:C105,205 470µF、C109,209 1000µF)
(25Vの場合:C109,209 1000µF横倒し)
・HEN110620B こちらなら立ても余裕
※こっちに決定、参考寸法W112xL200xH66.6mm
・基板右前のシルク「ステレオ時代」「KVS A-10SG」は出来れば外から見せたいですね。
ヒートシンク+厚さ10-11mmのアルミフラットバー
ここが悩み処。これを側面(W112が前面)に置くか、前or後面(L200を前面)に置くか…
(HEN内部には決して置けない、L200の片方=後面に側壁状に外付け)
・Fisher Elektronic SK42-75-SA 75x200x25mm 1.4K/W \1,558x1.08
http://jp.rs-online.com/web/p/heatsinks/1898628/
・1pcs Aluminum Heatsink for LM3886 TDA7294 SK3875 amp DIY 160*62*32mm
http://www.ebay.com/itm/131774242763?ssPageName=STRK:MESINDXX:IT&_trksid=p3984.m1436.l2649 \762+送料\727
・Fisher Elektronic SK85-50-SA 50x160x40mm 1.3K/W \998x1.08(パーツセットの非加工品)
http://jp.rs-online.com/web/p/heatsinks/1898173/
・Fisher Elektronic SK58-50-SA 50x150x27mm 1.7K/W \744x1.08
http://jp.rs-online.com/web/p/heatsinks/1898432/
2.主要電解コンデンサは、ニチコン KZかELNA SILMICⅡ予定
A-10のゴリゴリ押し出す感じ(聴いた事無いけどイメージ)出すには
低域の押出感のあるKZが高域の上品なSILMICⅡ(これも一般より低域は確保できる)より
ふさわしいのかな、場合によっては旧OS-CON1000µF/16Vの投入も考えよう。
何時もは使わないがリーズナブルで元気なFGも良い線かもしれん。
3.抵抗
DAC用にMELF0204/0207色々な値集めてるので、2-3種をRSで買い足せばOK。
4.主IC:TDA7396は、AliExpressに20161217発注済み(納期15-29日)
\183x2個+送料\185=計\550
20170107着荷、まあまあ早かった。
出品には新品とあったが中古品に見える、価格からしてまあそんな物でしょうw
リマークした偽物ではなさそう。
5. 2回路オペアンプ(J-FET)x4個は、ebayに20161217発注済み
・OPA2134(パーツリスト指定品)4個で\419(納期20161228-20170123)
・OPA2604(2134で不満な時用?)4個で\422(納期20170117-20170217)
1回路OPA627AU(AP/BPは無理)x8個は、価格/発振の回避等手に負えそうもないのでpass。
両方とも20161230着荷、今回は超早かった。
20161224
ジャンパの考察
・J101,201、J104,204、J105,205は、裏の太いパターンに沿っている
→大電流を流すための導体断面積稼ぎ
・J102,202、J103,203は
→クロス配線の為の純粋なパターンジャンプ
20161231
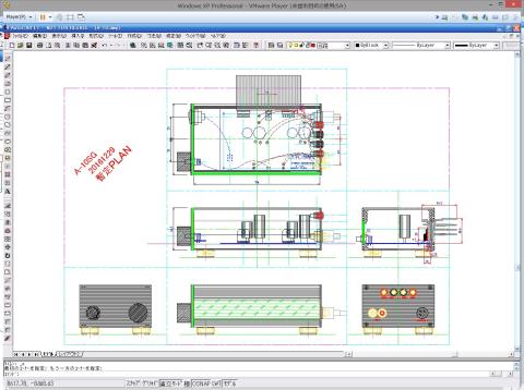
暫定PLAN制作
・パーツを暫定ケースに仮置き
・基板のロゴが見えます!、OS-CONの方が見栄えが良いかな。
ヒートシンク↓に最終決定
・AAVID THERMALLOY 0S568/100/B 2.46K/W \903 20170215入荷予定。
20170109現在2/22に入荷予定がどんどん伸びてる、組めないorz
http://jp.rs-online.com/web/p/products/7124428/
L=100mm(1.82K/WのL=150mm \1072 も製品あり)
多分8Ω7.5w+7.5Wの1/5も使わないので放熱能力半分程度で行けると思う。
・熱伝導版/スペーサー 銅板20x20xt1.2mm \173(5枚組)ebayに20161229発注済み。
断面詳細
基板にVR直付けだとケースこの向きでは一部カット(ピンク斜線)要なので却下。
コンマ1mm単位でヒートシンクをケースに噛み合わせてる。
現状、図面による形状チェックのみで、TDA7396の足の曲がりの実際の仕上り、
ヒートシンク/銅板の精度等、現物を全て手にしないとこれ以上は進まない状態。
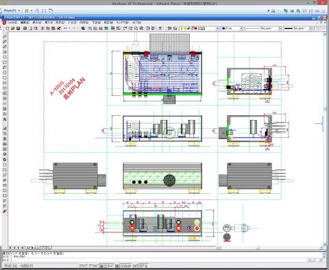
最終PLAN
・本来望むのはこれ、端子/つまみパネルの変更のみで可。
・基板オフセット、ヒートシンクのL=100mmは背面端子類の設置場所確保の為。
・VRは前面透明アクリル板に取付け、引出し配線がつまみで概ね隠れると良いが…
・プッシュスイッチは、左からVR有効/スルー・メイン電源on/off・基板通りのスタンバイon/off
(これも1-2mm浮かさないとVR直付けと同様ケースに干渉する。)
・20170104 CAD図変更
平面詳細図:配線の検討 上手く信号系と電源系は分けられる。
DC12Vx2系統の場合でも一応Susie25Vx2はスペース的に配置可能。
(電源前に計画中のACノイズフィルター入ればSusieは無くて良い)
-
購入金額
2,160円
-
購入日
2016年12月24日
-
購入場所
Amazon








mr_osaminさん
2016/12/25
CR-Xさん
2016/12/25
CAD化して寸法シビアに詰めないと、部品調達も加工の可否判断できませぬ。
年末年始でボチボチ起こしましょう。
↓見るとコメントはステレオ時代の中の人かな?
http://open.mixi.jp/user/13314670/diary/1957576658
付録シリーズ化期待してたけど、苦労大きかったのか今回だけみたいです。
mr_osaminさん
2016/12/26
CR-Xさん
2016/12/26
yosyos888さん
2016/12/26
yosyos888さん
2016/12/27
CR-Xさん
2016/12/27
↑自作電源使うのでまずは12Vかけても13.5Vでしょうねえ。
OS-CON1000µF/16V、SILMICⅡ1000&470µ/16V選んでますので。
KZの25Vが合う様なら16.7V上限まで試すかもです。
yosyos888さん
2016/12/27
CR-Xさん
2016/12/27
yosyos888さん
2016/12/27
yosyos888さん
2016/12/31
CR-Xさん
2016/12/31
アルミ噛ませるのと合わせて基板に熱が伝わるのを嫌ってるのかも。
ケース内にヒートシンクって矛盾してるんですよね、シンクのクリア加えて周囲に対流容積確保で益々ケースがデカくなる、ボンネットに放熱孔開けると積み重ね出来ない等々。
通りすがりのおじさんさん
2017/01/01
アクリルの加工はご自分でされるんですか?
レーザーカッター欲しいです・・・
mr_osaminさん
2017/01/04
ヒートシンクセットでは、アルミ板が付属していますがここにGNDを落とす仕様になっています。
このあたりも少し試案のしどころですね。
ケースの外側にヒートシンクを出すのもGoodです。
と、私はケースの中に入れてしまいますので放熱穴などを少し処理して。
CR-Xさん
2017/01/04
アクリルはネットで加工注文してくれるショップに出してます。
機械加工(0.1mm単位まで可)のみです、レーザーは焦げ跡残っちゃいますよ。
ダダこのショップがレーザー加工もあれば、表面印字も一括で出来るんですがねえ。
>mr_osaminさん
アースは抜かりないですよ、導通性のビスやヒートシンクのアルマイト処理削り要りますけど。
ただ露出のヒートシンクに電源や信号端子が触れない様に完成後も注意必要です。
HENのイレギュラーな使い方ですがこれもけっこい面白いでしょ?
重いシンが少ない固定箇所で剛性保って固定できればですがw
mr_osaminさん
2017/01/04
いつもながら、CR-Xさんのケーシングの発想ってスバらしいと思っています。
普通なら、ケース横面に張り付ける発想しかないですからw
>重いシンが少ない固定箇所で剛性保って固定できればですがw
yosyos888さんがおっしゃっているように、TDA7396の放熱部分が基板の端から離れているのでこのあたりどう処理するかがポイントかと。
ヒートシンクセットでは、約3mmのアルミ板がヒートシンクとTDA7396を仲介し、
基板上支えとなりますので、ヒートシンクが重くても割と安定しています。
通りすがりのおじさんさん
2017/01/05
私の場合、機械CADはCADAM系じゃないと使えないのですが、フリーでCADAM系は無いので
CADデータが準備できないんですよね・・・
それはさて置き、早く完成品が見たいです!