TIのPCM5102 を用いた Raspberry Pi MODEL B+に直結可能(ドータボード形式)なハイレゾリューション対応のオーディオ用 DAC
http://easyaudiokit.hobby-web.net/bekkan/manual/DAC51X2MINIBPLUSmanual.pdf
■ESSのES9023を用いた SebreBerry+ との音質対決がしたい。
■Raspberry Pai B と IrBerryDAC の組合せとも比較してみたい。
IrBerryDACから5Vを複数コンデンサで安定させRPi B(非スイッチングレギュレータ)に供給、DACチップへはローノイズレギュレータで3.3Vを生成したこれと、RPi B+(スイッチングレギュレータ)からの3.3V電源(独立給電も可能)だがデータはアイソレーションしてあるのと音的に優位差はあるのか?
※アイソレータICも安く入手してる事だし( ^ω^)・・・
※SeberBerry+の作者であるたかじんさんによると、
PCM5102とES9023は良し悪しじゃなく、かなり性格が違うとの事。
ならば、両方Raspberry Pi MODEL B+に載せて、切替えて使える様にしようと。
瞬時とは行かないが、タブレット/PC上のVolumioのPlybackから簡単に切り替えられる。
(ただし、アンプに送るLINE出力はスイッチで機械的に切替える必要がある。)

Raspberry Pi B のUSBに接続したSD398と、直接搭載したIrBerryDACが出ている。
と言う事でSeberBerry+注文した後にポチってたら、
入金案内待機中(アイソレーター無しkit \2,400+送料 \360=計 \2,760)なのに、
先に物が到着したw
>案内は荷物と同梱だった。(何と言う、人を信用した頒布活動!)
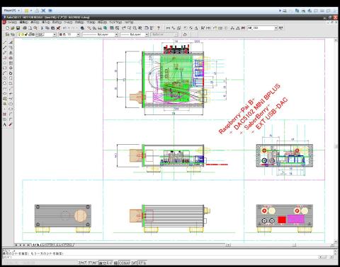
□ケーシングは検討済み
下段:RPi B+、中段:DAC51X2 MINI BPLUS、上段:SeberBerry+
3段重ねでもいつものタカチHEN110412Bに充分入る。
(上部クリアランス8.51mmは、小ターミナル端子でも入らないので注意。)
■試案1
DAC51X2 MINI BPLUS上に用意された拡張40ピンにSeberBerry+を載せる。
>この場合RPiの40ピンと結んでいるだけなので、
SeberBerry+は電源3.3V・GND/信号3本はアイソレートされない。
■試案2
DAC51X2 MINI BPLUSのアイソレート後の信号3本を受けられるようにしてみた。
(電源は綺麗な外部電源から2つのDACに引けば良い。)
アイソレータ別基板をわざわざ作らなくても済む。
(まあ、SeberBerry+単独構成用に作るだろうけど…)
20150205
■試案3
どうせ切替えるなら、外部USB-DACのLine-INも含め4極x3種を
手頃なALPSロータリースイッチ(パーツ捜索しなきゃ)で切替えられたら良いかも。
綺麗な外部電源使うなら内部の「Susie改」は要らないだろうし、
SeberBerry+の基板下は少し大きい電解コンデンサも付けられるように開けておくかな。
20150207 ケース加工まで到達
■RPi B+ に DAC51X2 MINI BPLUS を搭載しただけ。
ジャンパーピンはRPiとDAC供用、データ3本もアイソレータには行かない設定になっている。
■RPi B+ に DAC51X2 MINI BPLUS を搭載し、更に SeberBerry+ を搭載。
DAC51X2 MINI BPLUSは電源/データのアイソレート可能だが、
SeberBerry+ はRPiから、アイソレートされて無い電源/データを直接受けている。
20150209 音出し→いろいろ試行錯誤
まず最初にアイソレーターの威力超凄い!

■基本仕様
電源平滑C:SILMICⅡ 6.3V470μF(デフォルト容量100μF)横倒し
※上にSeberBerry+が載らない場合はOS-CON 16V1000μFの場合あり
LPF:ニッコーム 470Ω/WIMA 2200pF
(デフォルト定数=データシートと同じ=IrBerryDACのデフォルトもこれと同じ)
外部電源:ウォークマン・プロの6V1Aアダプタ(旧いのでトランス電源、無負荷時7.5V出てる)
↓
TPS7A4700で6Vを3.3Vに降圧
↓
DAC基板電源入力端子にファインメット・ビーズ組込み
完全な外部電源に比べる事は出来ないが、省スペースでここまでやればOKでしょ!
※オリジナルと違う改造や試行錯誤過程細かい事は省いてます。
後で、詳しくは備忘録的に追加するかも知れません。
■アイソレーター無しで試す(RPiから電源供給)/アイソレーター有で試す(外部電源)
RPiから電源受ける場合はSeberBerry+>>これ(DAC51X2 MINI BPLUS)
アイソレーター通すとこれのPCM5102の音がSeberBerry+(高解像度/ハイスピード)と
特別が付きにくい程、精細度が増し先鋭化。これの方が少し当りが柔らかいかなと言う程度。
どちらも現代的な音、高性能だが潤いや響きとは違う方向。
特にこれはPCM5102なのに柔らかさ※が出ないで
※IrBerryDACは設計者たかじんさんのチューニングでそこら辺が見事でオールマイティな音
高精細度なのは、SeberBerry+と棲み分けにならない。
(同じ筐体に二つDAC収めた意味が無くなる。)
20150211 アイソレータが効果あるので欲が出てここまで到達
■音響用コンデンサ/高価wなLPF投入
電源平滑C:KZ 25V1000μF 特殊基板自作の上横倒し
これだけで色は付いちゃうんだけど、音楽性相当UP
エージング不足のせいもあるが、ちょっと過剰/荒いか?
駄目押し
LPF:VSR 100Ω/ECHU 0.01μF
(IrBerryDACの最終兵器を移植、定数はIrBerryDACレビュー参照)
柔らかさ/しなやか、精細、空間/空気感、弦の響き/余韻全てUP
クラシックが本当に聴ける、ロック/JAZZもいける。
これは、うちでは電源分離できてない/アイソレーターの恩恵が受けられないSeberBerry+と
比べるのが酷な好環境になってしまってる=当然色々上回る。
是非、電源分離/アイソレーター有りのSeberBerry+を鳴らしてみたいものだ。
20150212 本来目指しているもの(未達成)
■RPi(一段目)→DAC51X2(二段目)→SeberBerry+(三段目)と重ねて
アイソレートされた電源/信号の二台(DAC51X2 / SeberBerry+)を切り替え、
性格/音質の違いを便利に活用して楽しむ…
どちらのDACもスペース上許される範囲のチューニングをして…
まずやって見た事
3.3V/GND、アイソレート後の信号x3本をDAC51X2から引出す
RPi(親)→DAC51X2(子)→SeberBerry+(孫)
単純に引き出しただけでは駄目でした。
同時に動いてるのが悪いのか?
外部給電では無くRPiからの給電では二台とも動いたんだけどなあ…
3.3V/GND、信号x3本が並列でぶら下がってたからか?
RPi(親)→DAC51X2(子)
→SeberBerry+(子)
(DAC51X2には40Pの並列ソケットが外部機器接続用に用意されている=だから2列ある)

DAC51X2 3.3V切離し加工前 裏(再現)→動かず
次に
アイソレーター出力partには常時外部給電、DACはいずれか一方だけ外部給電する
(フロントパネルにトグルスイッチ着いた理由)
外部電源3.3V/GND、アイソレート後信号x3本の5本を切替え
RPi(親)→DAC51X2のアイソレーター(子)→DAC51X2(孫)
→SeberBerry+(孫)
3.3V切離し加工後 表/裏 →未だ動かず
+3.3Vをトグルで切替えでGND共通、赤リードなし黒リードのみになってる
斜め茶/赤リード線(本来目指してる物の画像参照、この画像では斜めジャンパ)は、
アイソレーターとDAC51X2の3.3V切り離しの為の加工。
20150212 普通の三段重ねはどちらのDACも動く
■DAC51X2上の40Pの並列ソケットにSeberBerry+を載せた
RPi(一段目)→DAC51X2(二段目)→SeberBerry+(三段目)は
どちらも問題なく動きます。
・DAC51X2はJジャンパで、
アイソレートなしRPiからの給電、アイソレート有の外部給電共動く。
・SaberBerry+は単なるアイソレートなしRPiからの給電だが問題なく動く。
ただ、DAC51X2挟まない素の組合せと同じ。
20150218 アイソレータ通しの両方のDAC動作成功!!
■TPA7A4700で作っている3.3Vを3.5Vに変更
→アイソレータIC=SI8440Bは5.5V、DAC=PCM5102は3.9VまでOKとデータシートを読んだ。
PCM5102が心配だったが、今の処異常発熱や煙が出たりはしていないw
SaberBerry+のレギュレータ直後のコンデンサの足に接続
→レギュレータは3.5V作るために入力は若干でも高くないと動作しないだろうから
(レギュレータの品種判らないので具体的に必要な電圧差は不明)
3.5V作った直後のポイント(SaberBerry+の裏、茶色いSilmicⅡの足)に印加した。
これもひとえに、「たかじんさんの助言」のおかげです、大感謝!
DAC51X2/SaberBerry+とDACが違いは勿論だが、
SaberBerry+のアイソレータ有/無(加えてRPiからの電源か/綺麗な外部電源か)でも、
音ちゃうね~!!
LPF:VSR/ECHUにして更にアイソレータ通したPCM5102は
弾む音楽スムーズな音の繋がり(ES9023比)に加え、音分解能や空間の表現も手に入れた。
ここからの詳細は↓こっちに書きましょう!
-
購入金額
2,760円
-
購入日
2015年02月01日
-
購入場所
お気楽オーディオ資料館
















yosyos888さん
2015/02/03
mr_osaminさん
2015/02/05
どんどん構想が進んでいる。
藤原さんがCS4398のDAC基板検討中なので、それも搭載とか?
CR-Xさん
2015/02/05
藤原のは通常81x120じゃなく、その1/2サイズ何ですね!
DAC基板だけ小さいけど、これはI/V変換とかいつものフル構成に近くなりそう?
RPi含め、これで1つのシステム構成作る用かな、アドオンじゃ済まない。
CR-Xさん
2015/02/05
yosyos888さん
2015/02/05
mr_osaminさん
2015/02/07
IrBerryDACと比較視聴お願いします。
mr_osaminさん
2015/02/12
しかし、ジャンパー設定で簡単にアイソレートできるのはさすがです。
あと、これを応用してSabreBerry+もアイソレートできるようにすれば良いと、
言うは易し、ですが。
yosyos888さん
2015/02/12
CR-Xさん
2015/02/12
単にアイソレーター出力以降がDAC51X2の基板上でPCM5102繋がってるか、
長々と配線でSeberBerry+の繋がってるかの差だけなんですがねえorz
両名様
素で2400円と安いし、アイソレータ普通でも数百円までですから
買って損は無いです、IrBerryDACとの設計コンセプトの違いを楽しめます。
mr_osaminさん
2015/02/12
>素で2400円と安いし、アイソレータ普通でも数百円までですから
買って損は無いです、IrBerryDACとの設計コンセプトの違いを楽しめます。
むむっ、にわかに興味がwww
久しぶりに藤原さんの基板、いろいろまとめて注文してみようかしらん。
電源基板とか。
mr_osaminさん
2015/02/12
51X2基板上のアイソレータで組み合わせて検証しているんですね。
>外部給電では無くRPiからの給電では二台とも動いたんだけどなあ…
この場合は、当たり前ですけどアイソレータは経由しないで試したんですもんね。
>アイソレーター出力partには常時外部給電、DACはいずれか一方だけ外部給電する
この場合、51X2も動作しないんでしょうか?
CR-Xさん
2015/02/12
二段目51X2(アイソレーター有無)と三段目SeberBerry+(RPiから直接給電/アイソレートなし信号)はLine出力切替えて聴き比べられてます。
mr_osaminさん
2015/02/12
私もですが、オシロ無いとこういう場合解決が難しいかもしれないですね。
MCLK信号が無いからかなとも思いましたが、そもそもアイソレートなしでも同様だから無関係だし・・・
SabreBerry+の仕様が非公開なので、たかじんさん頼みになるかも・・・
yosyos888さん
2015/02/12
10個もあるしw
mr_osaminさん
2015/02/12
完全に給電を切り替えるのなら不要でしょうねw
CR-Xさん
2015/02/12
DAC51X2裏加工が一番信号ライン延長はシンプルなんですが、100kHzオーダーの信号には何も考慮しない無粋な引き回しは駄目なんですかね?
ノイズの影響もだけど信号線長/3本の揃い、クリティカルなのかも。
デジタルはポン付では済まんですねorz
CR-Xさん
2015/02/12
外だし=アドオンで行けるんだと思うが、ノウハウあるんだろうなあ。
mr_osaminさん
2015/02/12
>何も考慮しない無粋な引き回しは駄目なんですかね?
藤原さんの記事見ても、フラットケーブルで引きまわしたりしているので
大丈夫だと思うんですがね。
で、結局、「SabreBerry+」のアイソレート接続がうまくいかない。
という話でいいんですよね?
CR-Xさん
2015/02/12
51X2のkitも、SeberBerry+の完成品も弄らなければ廉価/省スペースを本当にお手軽(だから自ら弄って遊ぶ範囲を増やしたw)に動かせますし、どちらも素晴らしいと思います。
mr_osaminさん
2015/02/12
ちなみに、51X2基板上のアイソレータICを使って3.3Vの給電を外部から。
基板上から3信号、3.3V、GNDをSabreBerry+基板へ供給しているんですよね。
具体的に51X2基板のどこから配線してますか?
(いよいよ51X2基板の仕様を眺め始めてたり)
CR-Xさん
2015/02/12
GNDはRPiと切離した後のJP2から(アイソレータ/51X2/SeberBerry+共通)
外部電源+3.3Vをアイソレータ出力行きはそのまま(アイソレータ出力は常時外部電源)、PCM5102行きを一旦切断(マニュアルPDFの電解左下「Cp」の付近)、この+ラインがDAC-IC同時給電同時作動が不味いのかと思い、をトグルで51X2/SeberBerry+行きに切替えてます。
CR-Xさん
2015/02/12
信号3本も導通は取れてます。
mr_osaminさん
2015/02/12
ふむふむ、とりあえず間違いはなさそうですね。
わからんwww
CR-Xさん
2015/02/15
SeberBerry+への5Vと言う重大な点を見逃してます。
その他も色々と...、出先なので帰ったら見直します。
オシレータが3.5Vって言われてたのに~orz
SeberBerry+内でで5V→3.5V作って供給してるのだったあ!!
yosyos888さん
2015/02/16
mr_osaminさん
2015/02/16
なるほどー!
じゃあ、SaberBerry+には5V給電で良さそうですかね?
CR-Xさん
2015/02/16
アイソレータIC=SI8440Bは5.5V、DAC=PCM5102は3.9VまでかけられそうだからRPi5V以外の外部電源を3.5Vに統一できれば供給が楽なんだけど...
mr_osaminさん
2015/02/16
RPiからの5V(40pin)に5Vが出力されているはずですが、そこからアイソレーターへ供給
SabreBerry+側も独立で5V供給し、アイソレーター(DAC側)に入力してあげられるとわざわざ3.3V生成しなくても良いので。
CR-Xさん
2015/02/16
その他の注意でI2S分岐が不味いかも、ともありました。
わたしのはDACを電源SWで切り替えるから、そこはクリアの筈。
mr_osaminさん
2015/02/16
私も藤原さんのDAC注文したんだったw
どういう構成にしようかな。
忘れてました。
yosyos888さん
2015/02/16
CR-Xさん
2015/02/16
誰も私の後買ってないんだwww
yosyos888さん
2015/02/17
CR-Xさん
2015/02/17
私のせいじゃないですよw
yosyos888さん
2015/02/17
本当はChip1stopの購入画面を試してみようと思ってやったら、最後までいっちゃっただけなんですがw
代引き手数料があったら買いませんでした。
mr_osaminさん
2015/02/18
やっぱりTPA7A4700が1つ必要ですかぁ。
ん?ちなみに細かな話ですが、アイソレータを中心に
RPi側->3.3V
DAC側->3.5V
ってことですかね?
CR-Xさん
2015/02/18
5102絡まなければ、5V一種類で済むんですけどねぇ。
mr_osaminさん
2015/02/18
>5102絡まなければ、5V一種類で済むんですけどねぇ。
SabreBerry+側レギュレータ手前に5V印可するってことですね。
ということは、元々SabreBerry+はRPiの40pin(5V)のみ使用しているってことなんですかね。
CR-Xさん
2015/02/18
ただ40pinの一番pin3.3Vは横の4pinの3.3V(私が当初そこに接続していた)には最低繋がってます。
yosyos888さん
2015/02/18
人柱も立ててもらえたようなので、MINI B PLUSを頼もうかな?
でも、今度の金曜日は大阪出張なので、またデジットへ行くので、何か買ってしまうかも知れません
たかじんさん
2015/02/22
トグルスイッチで瞬時に切り替えるという考えはありませんでした。
DIYは発想しだいで、どんなモノでもできそうですね。
電源も解決したようで良かったです。
SabreBerry+のレギュレータはICではなくディスクリートのトランジスタで組んでます。このトランジスタ、じつは新世代のバイポーラトランジスタで、サイズは小さいのに1A流せます。(ピーク時2A) そしてhfeも500-900!
あまりにマニアックすぎるので公表はしてませんが。。。
CR-Xさん
2015/02/23
専用ドライバならVolumioのPlaybackでAudio Output切替え後のリブートが伴いますので。
なんか折角用意されたSaberBerry+上の電圧生成機構使わずにすみませんm(__)m
あの小ささで(ノイズ特性もたかじんさん選定なので良いのですね)2Aは凄いですね。
DAC用小型高性能汎用電源も設計して下さいな(^o^)丿
いつか外部電源→TPS7A4700のoutput設定変更5Vにして1pinからの給電もして見ます。
PMLCAPに変更でES9023の性格が見えてきましたw
電源と信号のクオリティ上げとかないと恐ろしいICですねw