汎用CADソフトウェアです。業務用の各種図面が描けます。
馴染めなかったJW-CAD
今回 国産の フリーCAD・JW-CAD から乗り換えてみました。
JW-CAD は、DOS の時代から存在していて、動作は軽くてよいのですが、操作やUIに古めかしいと感じる部分が多く残り、馴染めずにいました。
AutoCADは有名ですが、ちょっと使うには価格面からも敷居が高いです。
そんな時、フリーのCADはいくつかありますが、今風のCADを発見しました。
乗り換えと言っても、引き継ぐデータはさほど多くありません。
まずは、わたしの技量で新規作図できるかどうかです。
UIは、AutoCAD 風にできているとのことなので、これを覚えておけば、AutoCAD も使えるようになるのかなという甘い考えもちょっとだけあります。
日本語化はしっかりできてる
DASSAULT SYSTEMS(ダッソー・システムズ)は、フランスの会社ですがちゃんと日本語化できています。
ダウンロード
http://www.3ds.com/ja/products-services/draftsight-cad-software/free-download/
フリー版の制限
使用期限や保存ファイル(大きさ、本数)などに制限はないようですが、一部機能に制限があります。機能の制限は、応用的機能に限られているようなので、基本的な作図に不自由はなさそうです。
制限のかかったボタンをクリックすると、こんなダイアログが出ます。
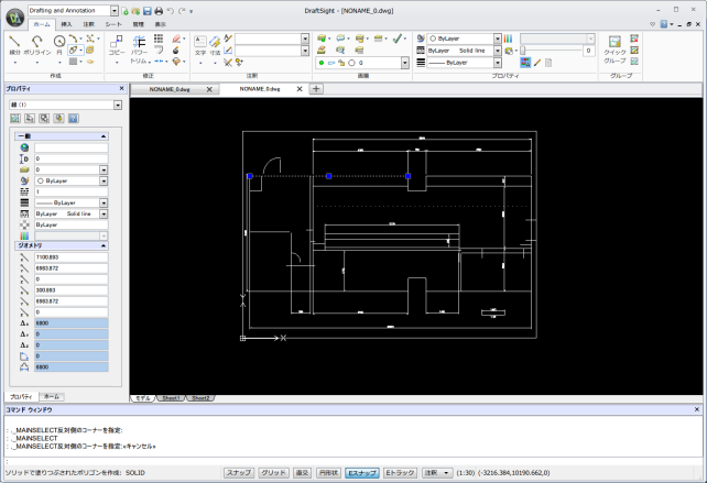
初めての平面図1枚=半日
ダウンロードするところから、DraftSight未経験で、オンラインのマニュアルと非公式な使い方サイトを見ながら半日かけて平面図が描けました(冒頭の画像)。
A3の紙に1:30の縮尺で20坪ほどの建物平面図を描くというミッションです。
打ち合わせや作業の時に、書き込んで使う目的なので細部まで作図していません。
カレンダーの裏に手で書いた図よりはマシだろう、というレベルです。
元の手書き図(現場の採寸メモ)
PDFのマニュアル:
http://www.3ds.com/fileadmin/PRODUCTS/DRAFT_SIGHT/PDF/GETTING-STARTED-GUIDE-JP.pdf
まだ機能のごく一部しか使っていない感じです。
CADなので、縮尺を考えないで実寸でどんどん入力できるので作図はしやすいです。
(DTPソフトだと、印刷したときの紙面でのサイズが基本になりますから、縮尺を計算しながら作図することになります。)
線の引き方、等間隔に配置、長さを数値入力しながら描くなど、ちょっとした操作でも他のジャンルのアプリにない操作感です。よく習熟すると、図をトレースするだけではなく、アタマの中のアイデアをたちどころに図に起こせる境地に達せそうです。(なかなかそこまで行けません。www)
とりあえず、打ち合わせがスムーズにできますように。
-
購入金額
0円
-
購入日
2016年08月19日
-
購入場所



kaerkiさん
2016/08/19
DLしてみよっかな~
ちばとどさん
2016/08/19
自動で入りますよ。(自動の意味は、寸法の数字を手入力しないでいい、の意味です)
CLWさん
2016/08/19
私もDos時代から使ってますが、使用頻度も少なくなりましたので、こちらでokです。
JW_WINの良いところは、印刷時に用紙サイズで縮尺が合う点です。
もちろん、AUTO CADではダメでしたが・・・(笑)
こちらも、面白そうですね。・・・機会があれば、DLしてみます。(^^ゞ
ちばとどさん
2016/08/20
DraftSight 、試してみてください。
そして、詳しいレビューも。
で、使い方、教えてくださいな。頼りにしてます。