Cacom 2世帯住宅()
[購入経緯]
以前住んでいた家が築70年ぐらいたっており老朽化や
断熱性など厳しくなり消費税が上がる前に購入。
[内容]
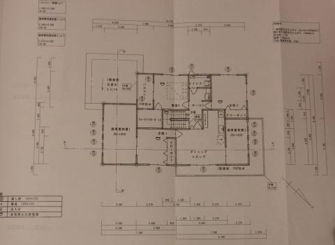
2世帯住宅になります。
工務店さんの仕様で高気密高断熱がうりで外断熱を採用
しています。
1階は両親が住むスペースで、インナーガレージ(2台分)
リビング、ダイニングキッチン、寝室、和室、お風呂と
なっています。
2階は、自分のスペースで、リビング、キッチン、寝室
洋間1、洋間2、倉庫1、倉庫2、
ウォークインクローゼットになります。
床暖房は、1階リビングとキッチンに採用しています。
あと3階に屋根裏物置が一つあります。
特色ある設備は、玄関のキーレスドア、リモコンシャッター
ガレージ内200V充電口(対応車はないですがw)、
玄関インターホンなどなどです(^^)
[その他]
引越しをして1週間程度経ちますが、家の暖かさが段違い
ですw。以前の家は、外の気温に影響を受けて冬の場合は
室内が10度を下回ることもあったのですが、今は外気が
2度でも、室内は12度くらいに保たれています。
とりあえず、今回は写真と簡単な説明ですが今後各設備は
レビューしていきたいと思います。
あぁ、書き忘れてましたが自分は独身です(笑)
どうしたものかなぁ・・・ or2
[画像]
[評価]
○な点
高気密高断熱
×な点
今後追記
△な点(改善点)
今後追記
□その他(今後の観察項目)
特に無し
[詳細情報]
Url:http://www.
-
購入金額
0円
-
購入日
2013年12月21日
-
購入場所
自宅







































daiyanさん
2014/01/01
誰かさんが吸い込まれていきそうですw
撮影スペースとPC完備トイレに草w
退会したユーザーさん
2014/01/01
大きくて綺麗で素敵です!
いいですね!新築!(*´ω`*)
mickeyさん
2014/01/01
あひるさんホイホイなお家かもですw
ねるべく部屋を明るくしてみました(^^)
撮影スペースは独り身なので(爆)
トイレは予想外でしたw。デスクトップも
置けそうです(^^)
mickeyさん
2014/01/01
両親の要望を取り入れていたら、いつの
間にか大きな家へと・・・(^^;
以前の家から、あまりにも変わってしまい
戸惑ったりしていますw
つきさん
2014/01/01
レビュー部屋もあってzigzow適応してますね。
物置がめちゃめちゃ広いですね。
こんなスペースあったら鉄道模型やりたくなります。
mickeyさん
2014/01/01
ありがとうございます m(_ _)m
独り身なので部屋が余りまくっています(^^;
2階で今使っているのが寝室だけという・・・w
鉄道模型、ハマりそうで怖いです(^^)
Manyaさん
2014/01/01
収納多くていいですね。
一部屋まるまる鉄道模型・・・なんて素敵なおうち!
harmankardonさん
2014/01/01
立派なお家ですね.
北のラブリエさん
2014/01/01
おめでとうございますっ!
れいんさん
2014/01/01
ムフフー
もっとホワイト化を進めないとー
たとえばー
ソファをホワイトカバーかけたり
ホワイトなテーブルクロスかけたり
うふふー
リンさん
2014/01/01
凄い豪邸じゃないですか。
物置Aとか普通の部屋だし(笑)
>あぁ、書き忘れてましたが自分は独身です(笑)
嫁はよ!!><
とっぷりんさん
2014/01/01
個人的には、サイバーなmickeyさんの予定表が意外とアナログだったのが良いです。
御自宅完成まで大変だったと思います。
写真はぼちぼち拝見させていただきますね♪
パッチコさん
2014/01/01
うらやましいです。
うちも一戸建てですが土地が小さくて縦に伸びました。。
はにゃさん
2014/01/02
いい感じのおうちができましたね!
あとはお嫁様ハントです
KAOさん
2014/01/02
嫁いできたときに建っていたので
新しいおうちうらやましいっ!
新しいおうちにすてきなお嫁さん♪いいなあ。
mickeyさん
2014/01/02
ありがとうございます m(_ _)m
前の家が荷物が多かったので、それを教訓に
収納は多く出来るようにしてみました。
一部屋まるまる鉄道模型はローンが終わってからの
夢に・・・w
mickeyさん
2014/01/02
ありがとうございます m(_ _)m
そう言って頂けると嬉しいです(^^)
ローンを頑張りますw
mickeyさん
2014/01/02
ありがとうございます m(_ _)m
これでやっと暖かい部屋でPSO2を出来ます(笑)
mickeyさん
2014/01/02
さすがホワイト隊長れいんさんw
白色は好きなのですが1階は両親が
メインなので(^^)
mickeyさん
2014/01/02
ありがとうございます m(_ _)m
嫁さん何とかしないと・・・と言ってみますw
mickeyさん
2014/01/02
ありがとうございます m(_ _)m
一瞥性と情報共有、メモのしやすさから
アナログ的なものも好きだったりします(^^)
mickeyさん
2014/01/02
ガレージは今もある離れの使い勝手を活かした
仕様にしています。今の離れのガレージも2台
入るのですが真ん中に支柱があり邪魔でした。
今回はスッキリとしたガレージにしています(^^)
mickeyさん
2014/01/02
ありがとうございます m(_ _)m
なんとかギリギリ年内に完成しましたw
お嫁様ハントが最大の課題かもしれません(^^;
mickeyさん
2014/01/02
ありがとうございます m(_ _)m
とりあえず、2階のキッチンとリビングの家具は入れたの
ですが、他の家具系は今後来られる方のことを考えて何も
買っていなかったりします(^^)
あっ、先日寝室用机は我慢できずに買っちゃいましたw
yookano794さん
2014/01/02
冬の寒さが厳しくなる前で、良かったですね。
高機密住宅の暖かさを、これから堪能して下さい。
ローンも大変でしょうが、頑張ってください。
くれぐれも、健康にはご留意されますように。
mickeyさん
2014/01/02
ありがとうございます m(_ _)m
この冬は積雪が少なくて助かりました。
天候にも左右されまして結構厳しかった
です。暖かい家はいいですね(^^)
お気遣い感謝します。ローンは頑張りますw
あきんばさん
2014/01/02
暖かい家、うらやましいです(笑
そして何もかも眩しい(笑
mickeyさん
2014/01/02
ありがとうございます m(_ _)m
お褒めに預かり嬉しいです(^^)
なるべく明るくなるような配色に
してみました。
これから堪能したいと思いますw
ふじしろ♪さん
2014/01/03
いつか家族でお泊りに行きたいです♪♪
お嫁様はよー!
mickeyさん
2014/01/03
気がついたら予想以上に広いトイレに
なってしまいました(^^;
部屋は空いてますので、お泊りOKですw
お嫁様は・・・ or2
cybercatさん
2014/01/03
>洋間B(レビュー用撮影スペースw)
イイナァ..ww
LED照明付きのインターホンや、キーレスドア、EV用の充電施設など先進装備満載ですね。
あとは嫁さんの装備だけですな。
工務店さんとの交渉でソコを標準装備にしてもらわなかったのが手落ち?ww
mickeyさん
2014/01/03
ありがとうございます m(_ _)m
折角新築するので色々盛り込んで見ましたw
>嫁さんの標準装備
なるほど、その手がありましたか!(笑)
我輩!テトであーる♪さん
2014/01/06
すごくいい家ですね♫
トイレにPC置けるってイイですね。
トイレに籠もるの大好きな私(汗)
mickeyさん
2014/01/06
ありがとうございます m(_ _)m
自分も憩いの場がトイレだったりします(笑)
sakuraba satomiさん
2016/05/21
kensanさん
2016/10/08
我が家は築20年になり、子供たちも来年新家庭を築きますので夫婦2名では広すぎます(苦笑)。
家には思い出という何物にも代えがたい財産が残るかと思います。すでに2年経過されていますが、よい思い出を築いて下さい。
私は定年後、田舎の平屋に住もうかと、古民家物色中を始めました。
申し遅れましたが、3年ほど海外中心でしたがようやく落ち着くことができました。
今後ともよろしくお願いします。
mickeyさん
2016/10/21
おかえりなさいませ(^^)。
コメントを、ありがとうございます m(_ _)m
月日が経つのはあっという間ですね。もう2年経って
しまいました。
田舎の古民家良いですね。石川県の能登半島をツーリングや
ドライブした時に何時かは住んでみたいなと思ったりしま
した。
また、宜しくお願いいたします。